かしわ台クラルテ西棟の募集情報

ホーム | 物件探しを依頼する | ログイン | 未公開物件から探す  | お気に入りに登録した物件0

TOP > 売買物件検索 > 売買物件詳細

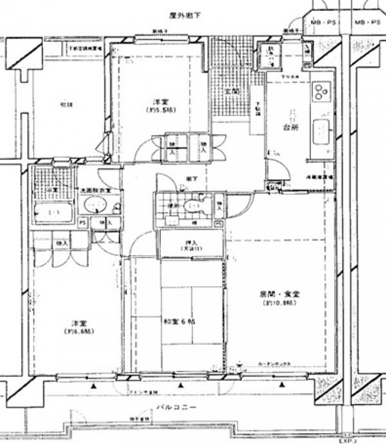
かしわ台クラルテ西棟

かしわ台クラルテ西棟

所在地 神奈川県海老名市柏ケ谷6丁目3-1
交通 相鉄本線 かしわ台駅 徒歩4分
利回り/満室時年収4.75%/1,284,000円
価格 2,700万円
構造/階築年鉄骨鉄筋コンクリート造 / 14階建 / 1989年12月
間取り/専有面積3LDK / 79.50m²
建物面積- -
土地面積/土地権利- -/所有権
都市計画/用途地域- - / 第一種住居
現況・引渡賃貸中 相談
情報更新日2026年04月17日
情報有効期限2026年05月01日
取引態様仲介
設備条件/設備備考エレベーター / 上水道(公営) / 下水道(公共下水) / ガス(都市ガス) /
 
かしわ台クラルテ西棟お問い合わせ先
会社名ケイティーホームズ株式会社・売買部
住所東京都渋谷区桜丘町13番9号501
TEL03-6809-0697
物件番号0094-00007193

この物件の周辺環境マップ

この物件にメールでお問い合わせ

Copyright (C) ケイティーホームズ株式会社・売買部