ホーム | 物件探しを依頼する | ログイン | 未公開物件から探す | お気に入りに登録した物件0
| 所在地 | 東京都渋谷区桜丘町29-21 |
|---|---|
| 交通 |
山手線 渋谷駅 徒歩8分 京王井の頭線 神泉駅 徒歩8分 |
| 所在階 部屋番号 | 5階/8階建 501 |
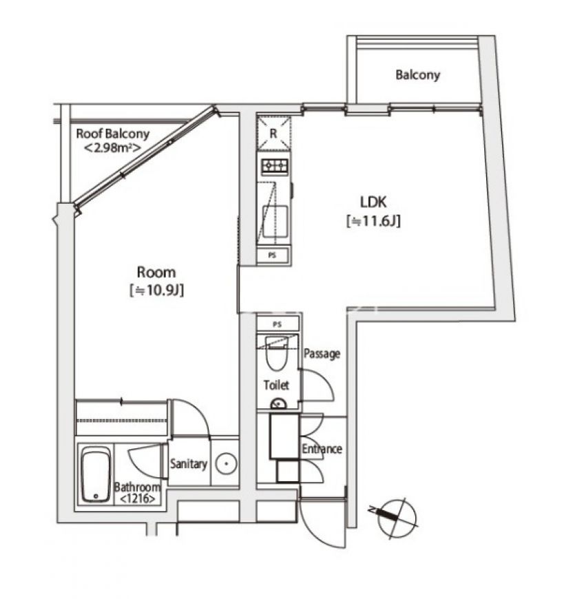
| 間取り/面積 | 1LDK / 49.93m² |
| 賃料 | 332,000 円 |
| 礼金/敷金/保証金 | 0.0ヶ月 / 1.0ヶ月 / - - |
| 管理費/共益費 | 10,000円 / |
| 更新料 | 契約更新期間 2.00年 / 更新料 新賃料の1.0ヶ月 |
| 保険/保証料 | |
| 構造/築年月 | 鉄筋コンクリート造 / 2007年4月 |
| 向き | 東 |
| コメント | 【仲介手数料最大無料です!!】★山手線・渋谷駅徒歩8分★2人入居可のデザイナーズマンション★角部屋 ★宅配ボックス |
| 駐車場 | 無し |
| 入居 | 即時 |
| 情報更新日 | 2026年04月26日 |
| 情報有効期限 | 2026年05月10日 |
| 取引態様 | 仲介 |
| 間取内訳/間取備考 | LDK11.6帖 / 洋10.9帖/ |
|---|---|
| 設備条件/設備備考 | 二人入居可 / エレベーター / 角部屋 / 二階以上 / 24時間ごみ出し可 / システムキッチン / バス・トイレ別 / 追い炊き / エアコン / CSアンテナ / BSアンテナ / インターネット / オートロック / 宅配ボックス / バルコニー / 上水道(公営) / 下水道(公共下水) / ガス(都市ガス) / コンロ(ガス) / コンロ数(二口) / |
| 契約条件/他費用 | / 鍵(税込) 27,500円 損害保険2年 22,000円 |
| カスタリア渋谷櫻丘へのお問い合わせ先 | |
|---|---|
| 会社名 | ケイティーホームズ株式会社・売買部 |
| 住所 | 東京都渋谷区桜丘町13番9号501 |
| TEL | 03-6809-0697 |
| 物件番号 | 0094-00007142 |